Πολυτελές μικροσκοπικό σπίτι: Πρόκειται για ένα λυόμενο σπίτι. Όμως, το συγκεκριμένο σπίτι διαφέρει από τα άλλα. Αυτό, διότι η πολυτέλεια όχι μόνο είναι υπαρκτή, αλλά και περισσεύει. Όσον αφορά τον κατασκευαστή, είναι ο Κρις Χέινινγκ και έχει καταγωγή από την Αριζόνα. Ο ίδιος έβαλε όλη του την τέχνη για να εκσυγχρονίσει τα 26 τετραγωνικά μέτρα.
Πολυτελές μικροσκοπικό σπίτι: Πώς είναι επιπλωμένο, το σπίτι
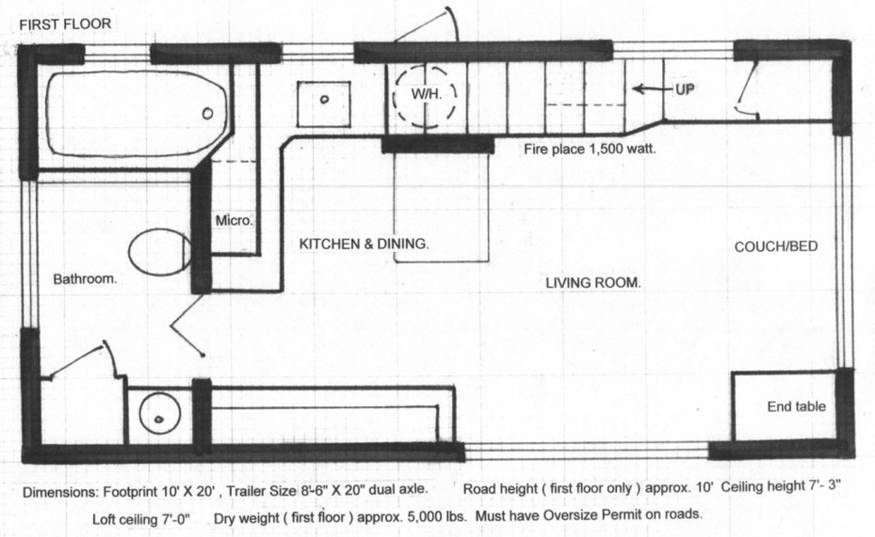
Η κουζίνα είναι πλήρως εξοπλισμένη με τις πιο σύγχρονες εντοιχισμένες ηλεκτρικές συσκευές. Αντίθετα, το μπάνιο διαθέτει ακόμη και τζακούζι. Ο Χέινινγκ εκμεταλλεύτηκε στο έπακρο κάθε ευκαιρία για αποθηκευτικό χώρο. Έτσι, δεν υπάρχει σημείο που να μην έχει αξιοποιήσει. Συνήθως επέλεγε να μετατρέπει κάθε σημείο σε κρυφή ντουλάπα.
Για να επιτύχει να έχει σε έναν τόσο μικρό χώρο και ένα ευρύχωρο σαλόνι, αλλά και μία κρεβατοκάμαρα όπου θα χωρά υπέρδιπλο κρεβάτι, κατασκεύασε έναν εσωτερικό loft. Αυτό βρισκόταν ακριβώς πάνω από την κουζίνα στον οποίο βρίσκεται το υπνοδωμάτιο. Αντίθετα, στη σκάλα που οδηγεί στη σοφίτα-κρεβατοκάμαρα, έχουν ενσωματωθεί αποθηκευτικοί χώροι, αλλά και ηλεκτρικό τζάκι.
Πολυτελές μικροσκοπικό σπίτι: Ακολουθούν ένδεκα Φωτογραφίες από το πολυτελές, αλλά μικρό σπίτι



Πολυτελές μικροσκοπικό σπίτι: Κι άλλες Φωτογραφίες από το πολυτελές, αλλά μικρό σπίτι



Πολυτελές μικροσκοπικό σπίτι: Επιπλέον, Φωτογραφίες από το πολυτελές, αλλά μικρό σπίτι



Οι υπόλοιπες Φωτογραφίες από το πολυτελές, αλλά μικρό σπίτι

