Αυτό το λυόμενο σπίτι είναι διαφορετικό από όλα τα άλλα. Οσο κι αν δεν του φαίνεται με την πρώτη ματιά, χωράει τόση πολυτέλεια όση δεν μπορείτε να φανταστείτε.
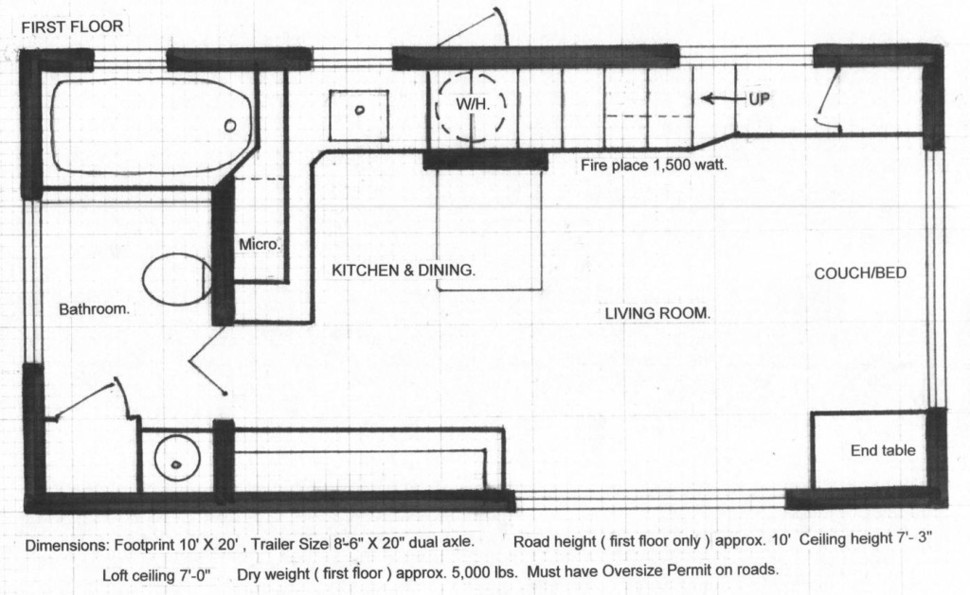
Ο κατασκευαστής Κρις Χέινινγκ από την Αριζόνα κατάφερε μέσα σε μόλις 26 τετραγωνικά να χωρέσει έναν υπερσύγχρονο εξοπλισμό που θα ζήλευε και η πιο μεγάλη έπαυλη.
Η κουζίνα είναι πλήρως εξοπλισμένη με τις πιο σύγχρονες εντοιχισμένες ηλεκτρικές συσκευές, ενώ το μπάνιο διαθέτει ακόμη και τζακούζι. Ο Χέινινγκ εκμεταλλευόμενος κάθε ευκαιρία για αποθηκευτικό χώρο δεν υπάρχει σημείο που να μην έχει αξιοποιήσει μετατρέποντάς στο σε κρυφή ντουλάπα.
Μάλιστα, για να επιτύχει να έχει σε έναν τόσο μικρό χώρο και ένα ευρύχωρο σαλόνι, αλλά και μία κρεβατοκάμαρα όπου θα χωρά υπέρδιπλο κρεβάτι, κατασκεύασε έναν εσωτερικό loft ακριβώς πάνω από την κουζίνα στον οποίο βρίσκεται το υπνοδωμάτιο, ενώ στη σκάλα που οδηγεί στη σοφίτα-κρεβατοκάμαρα, έχουν ενσωματωθεί αποθηκευτικοί χώροι, αλλά και ηλεκτρικό τζάκι.










